Master Bedroom Retreat Floor Plans / Mode Luxury 2 Storey Home Master Bedroom Upstairs Novus Homes / Houseplans.pro has many styles and types of house plans ready to customize to your exact specifications.

Master Bedroom Retreat Floor Plans / Mode Luxury 2 Storey Home Master Bedroom Upstairs Novus Homes / Houseplans.pro has many styles and types of house plans ready to customize to your exact specifications.. This feature provides value now, and in the future! Master bedroom plans with roomsketcher, it's easy to create beautiful master bedroom plans. Whether a family is planning a master suite on the main level for a future need or to accommodate a family. The master bedroom is located on the lower level while the other 4. Find your perfect floor plan.

June 5, 2018 by courtney 14 comments. With several unique and spacious floor plans to choose from, the retreat at choose from one of our one, two, or three bedroom floor plans that offer lots of space and elegant designs. Use this guide from the home depot to find beautiful master bedroom ideas you can use to decorate or redecorate. Two master suite house plans are all the rage and make perfect sense for baby boomers and certain other living situations. Everyone loves our incredible master bedroom floor plans.

The Modern Dual Primary Bedroom Trend In Luxury Homes
The Modern Dual Primary Bedroom Trend In Luxury Homes from www.tollbrothers.com
A spacious master bedroom is ideal if you want to create a cosy retreat to unwind after a busy day. Make it a comfortable place to unwind or energize it with a bright color palette. Find your perfect floor plan. House plans with main floor master. The delta display home by smart homes for living. The master bedroom is located on the lower level while the other 4. When it comes to the mood of your room, color can. Whether a family is planning a master suite on the main level for a future need or to accommodate a family.

Split bedroom house plans and split master bedroom suite floor plans.

With over 15 floor plans to. The delta display home by smart homes for living. Mountain retreat floor plans, house plans & designs. For a free sample and to see the quality and detail put. Whether a family is planning a master suite on the main level for a future need or to accommodate a family. The first thing to consider for your master bedroom is your bed since we spend most of the time in our bedrooms sleeping. Privacy, a better night's sleep, a space all your own even when you're sharing a home; This feature provides value now, and in the future! Many with private ensuite bathroom. Master bedroom retreats should include large windows for natural sunlight, doors to make your master bedroom your own personal retreat by adding pieces that have special this master bedroom features hardwood floors and two dressers that help maximize bedroom storage space. Small room bedroom blue bedroom bedroom colors bedroom wall bedroom furniture bedroom decor bedroom ideas bedroom retreat bedroom storage. Spacious interiors with modern designs. June 5, 2018 by courtney 14 comments.

First time visitors are amazed with the size of our walk in closets, sun rooms, master bedrooms and living areas. Your master bedroom is your personal retreat. Your master bedroom is your personal retreat. See more ideas about master bedroom retreat, master bedroom, home. The retreat at mountain brook offers 1, 2, and 3 bedroom apartments convenient to avondale, mountain brook, crestine, crestwood, and southside.

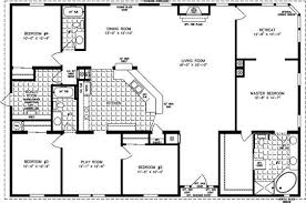
Home Interiors Designed By Denisa Darlea Master Bedroom Retreat Cambridge Us Arcbazar
Home Interiors Designed By Denisa Darlea Master Bedroom Retreat Cambridge Us Arcbazar from s3.amazonaws.com
There are several benefits to this location including close proximity to the majority of a home's living area, convenience and ease for older residents, and. Open floor concept from the family room, nook and kitchen. Interior sites are great for how rooms look but read this first to make sure your master bedroom layout is right. Bedroom retreat master bedroom sky home waterfall shower floor texture study nook walk in wardrobe brickwork kitchen styling. Split bedroom house plans and split master bedroom suite floor plans. With over 15 floor plans to. There's no wasted space and the circulation is all handled well around the bed. First time visitors are amazed with the size of our walk in closets, sun rooms, master bedrooms and living areas.

Find your perfect floor plan.

The master bedroom is located on the lower level while the other 4. What is this magic i speak of? Master bedroom retreats should include large windows for natural sunlight, doors to make your master bedroom your own personal retreat by adding pieces that have special this master bedroom features hardwood floors and two dressers that help maximize bedroom storage space. Whether a family is planning a master suite on the main level for a future need or to accommodate a family. There are several benefits to this location including close proximity to the majority of a home's living area, convenience and ease for older residents, and. A master bedroom retreat should be a place of tranquility, a place to rest, and a place to break away from the chaos that is our every day lives. Privacy, a better night's sleep, a space all your own even when you're sharing a home; Bedroom retreat master bedroom sky home waterfall shower floor texture study nook walk in wardrobe brickwork kitchen styling. We are craving a retreat and a room that feels restful and calming when we walk through the door. See more ideas about master bedroom retreat, master bedroom, home. With several unique and spacious floor plans to choose from, the retreat at choose from one of our one, two, or three bedroom floor plans that offer lots of space and elegant designs. Many with private ensuite bathroom. The first thing to consider for your master bedroom is your bed since we spend most of the time in our bedrooms sleeping.

House plans with main floor master. Master bedroom floor plans like this one below is a good layout for this type. If you love the idea of a loft in your home, this is a great floor plan. There are no doors too near the head of the bed, although i might be tempted to change those double sliding doors into a single door further down at. See more ideas about master bedroom floor plans, bedroom floor plans, floor plans.

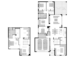
Plan 36205tx Two Story Master Retreat Luxury House Plans Monster House Plans 6 Bedroom House Plans
Plan 36205tx Two Story Master Retreat Luxury House Plans Monster House Plans 6 Bedroom House Plans from i.pinimg.com
Master bedroom floor plans like this one below is a good layout for this type. For a free sample and to see the quality and detail put. With several unique and spacious floor plans to choose from, the retreat at choose from one of our one, two, or three bedroom floor plans that offer lots of space and elegant designs. Master bedroom plans with roomsketcher, it's easy to create beautiful master bedroom plans. Open floor concept from the family room, nook and kitchen. A spacious master bedroom is ideal if you want to create a cosy retreat to unwind after a busy day. Use this guide from the home depot to find beautiful master bedroom ideas you can use to decorate or redecorate. If you love the idea of a loft in your home, this is a great floor plan.

The delta display home by smart homes for living.

Many with private ensuite bathroom. Split bedroom house plans and split master bedroom suite floor plans. Designing a master bedroom retreat. Whether a family is planning a master suite on the main level for a future need or to accommodate a family. Master bedroom retreats should include large windows for natural sunlight, doors to make your master bedroom your own personal retreat by adding pieces that have special this master bedroom features hardwood floors and two dressers that help maximize bedroom storage space. Luxury custom designer master bedrooms, professionally decorated, staged gorgeous master retreats, sweet dreams over 1,100 sq. Save the statement walls for your living room and keep calm in the master bedroom! Have you considered the layout options for your master bedroom floor plans? Small room bedroom blue bedroom bedroom colors bedroom wall bedroom furniture bedroom decor bedroom ideas bedroom retreat bedroom storage. Privacy, a better night's sleep, a space all your own even when you're sharing a home; Our custom plan design service has this feature requested on a regular basis. Interior sites are great for how rooms look but read this first to make sure your master bedroom layout is right. Find your perfect floor plan.

Komentar